Od výrobců a distributorů

Sharp/NEC - Nové nástěnné držáky pro LFD

Nové nástěnné držáky LFD displejů na stěnu

SHARP / NEC Display

Sharp/NEC - Nové nástěnné držáky pro LFD

Neustále se snažíme o inovace, abychom na náš trh přinesli nejnovější technologie s cílem splnit jedinečné potřeby našich zákazníků. Shromáždili jsme naše nejnovější produkty se širokou škálou hardwarových a softwarových řešení, abyste hned na první pohled viděli, co máme nového. Společnou vlastností všech našich produktů je náš příslib kvality, spolehlivosti a nejvyšší třídy vizuálních zážitků.

 

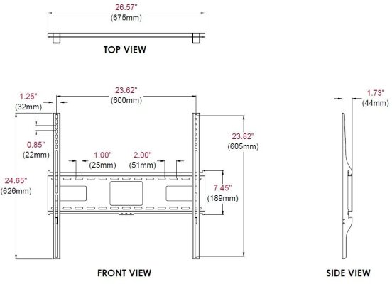
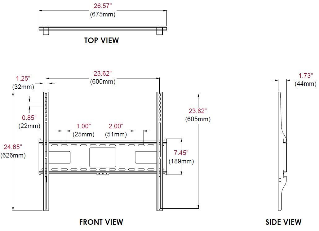
Nástěnný držák L20PNWALL90EU

Univerzální plochý nástěnný držák X-Large

Nízko profilový design držáku na stěnu, který se hodí do jakéhokoli interiéru.

L20PNWALL90EU nabízí nejuniverzálnější instalační funkce a možnosti montáže pro displeje Sharp/NEC s úhlopříčkou od 50" do 90". Schopnosti horizontálního a vertikálního nastavení umožňují vyrovnání po instalaci a polohování ze strany na stranu, takže nalezení ideální polohy displeje je snazší než kdykoli předtím. Otevřená konstrukce desky na stěnu nabízí úplný přístup ke stěně, čímž se rozšiřují možnosti správy kabelů. Displej lze jednoduše nainstalovat pomocí adaptérů, které se zaháknou za nástěnnou desku, a zajistit tak celkově rychlou, jednoduchou a bezpečnou instalaci.

 

Technické parametry L20PNWALL90EU:

  • Nosnost 102 kg 
  • Doporučená velikost displeje [palce] 50 až 90
  • Rozměry (š x v x h) [mm]  675 x 626 x 46
  • Vzor VESA [mm] 600 x 600

 Výhody L20PNWALL90EU:

  • Flexibilní – podporuje montáž VESA 200 mm, 400 mm a 600 mm.
  • Bezpečná konstrukce – testováno na čtyřnásobek uvedené nosnosti.
  • Elegantní a příjemný vzhled – nízko profilový design, který zapadne do jakéhokoli interiéru.
  • Snadná instalace – potřebné montážní příslušenství pro upevnění na stěnu a displej je součástí dodávky.
  • Zabraňuje neoprávněné manipulaci a krádeži – bezpečnostní šrouby jsou součástí montáže.

Produktový list L20PNWALL90EU.

Podrobné technické informace o L20PNWALL90EU naleznete ZDE na stránkách výrobce.

 

 

 

 

Nástěnný držák SF680P

Univerzální plochý nástěnný držák XX-Large

Speciálně navržený pro velkoformátové displeje Sharp/NEC s úhlopříčkou od 65" do 98".

Dodejte svému pracovnímu prostředí moderní styl díky elegantní, ale kompaktní instalaci.

Univerzální plochý nástěnný držák SF680P má velmi štíhlý profil určený pro velké displeje s hmotností až 158 kg. Instalaci a údržbu usnadňuje robustní sada funkcí držáku SF680P. Vestavěný stojan držáku bezpečně drží displej od stěny během vedení kabelů, zatímco otevřená nástěnná deska umožňuje rozšířit možnosti vedení přívodu napájení a kabelů. Horizontální a vertikální nastavení displeje umožňuje rychlé doladění namontovaného displeje.

Technické parametry SF680P:

  • Nosnost 158 kg 
  • Doporučená velikost displeje [palce] 65 až 98
  • Rozměry (š x v x h) [mm]  1 062 x 698 x 44
  • Vzor VESA [mm] 1 100 x 650

Výhody SF680P

  • Snadná instalace nástěnné desky - nástěnná deska umožňuje předinstalovaní šroubů.
  • Nízko profilový design - pro elegantní, ale kompaktní instalaci.
  • Flexibilní instalace - s možností vertikálního nastavení po instalaci.
  • Snadný přístup a údržba - rychle odnímatelné stahovací šňůrky pro snadný přístup a údržbu zadní části displejů.
  • Kompletní obsah balení - součástí balení je upevňovací balíček s veškerým potřebným montážním a upevňovacím příslušenství k displeji.

Produktový list SF680P.

Podrobné technické informace o SF680P naleznete ZDE na stránkách výrobce.

 

Kvalita dělá rozdíl – Sharp NEC Display Solutions.

Kompletní sortiment společnosti Sharp/NEC naleznete ZDE.

 

Dostupnost a distribuce produktů:

Produkty můžete zakoupit v síti CZ/SK Sharp/NEC distributorů nebo dealerů:

AT Computer CZ i SK, AV MediaeDsystem CZ i SK, Exac, Image CZSWSImpromat CZ i SK, Nowatron Elektronik a Techdata.

 

3 roky záruka výrobce:

Sharp/NEC poskytuje tří letou záruku ve standardu, lze přikoupit rozšířenou záruku výrobce až na 5 let.
Výrobce tak nabízí nejvyšší bezpečnost investice a velmi nízké celkové náklady na vlastnictví produktů.
Sharp/NEC poskytuje na své výrobky službu SERVICE PLUS - závazek kvality.
Na vybrané projektory poskytuje výrobce rozšířenou bezplatnou záruku až 5 let po registraci na základě akce do března 2023, podmínky akce naleznete ZDE.

 

Servis produktů Sharp/NEC zajišťuje společnost:

IMPROMAT-COMPUTER s.r.o. se sídlem Třida Tomáše Bati 5267, 760 01 Zlín

ČR  Tel.: +420 800 166 366
SR  Tel.: +421 948 657 147 

Obrazová galerie